"โครงการ เดอะทรี พัฒนาการ-เอกมัย (THE TREE Pattanakarn-Ekkamai) ทุกการเริ่มต้นของการใช้ชีวิต ก็เปรียบเสมือนนกน้อยที่เริ่มสร้างรังเป็นของตัวเอง และจะดีกว่าไหม ถ้ารังของคุณจะถูกสร้างอยู่บนต้นไม้ใหญ่กลางเมือง รังที่สะดวกสบายต่อการเดินทางออกไปเจอโลกกว้าง แต่ก็พร้อมที่จะปลีกตัวจากความวุ่นวาย กลับสู่รังบนใต้ไม้อันสุขสงบ"
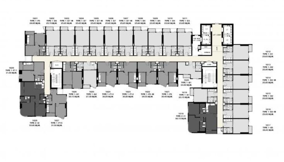
FLOOR PLAN
แบบห้อง : 1 BEDROOM
แบบห้อง : 2 BEDROOM
ภาพโครงการ
ทำเลที่ตั้ง
ถนนพัฒนาการ แขวงสวนหลวง เขตสวนหลวง กทม.
สิ่งอำนวยความสะดวกรอบโครงการ
สถานศึกษามหาวิทยาลัยรามคำแหง 2.6 กม.มหาวิทยาลัยเกษมบัณฑิต 3.8 กม.
การเดินทาง
AIRPORT RAIL LINK รามคำแหง 300 ม.ทางด่วนศรีรัช 250 ม.
บทความที่คุณอาจสนใจ
• 15 น้ำพุแมว ยี่ห้อไหนดี ที่โดนใจเจ้านายและตอบโจทย์ไลฟ์สไตล์เหล่าทาส
• 10 ไอเดีย บ้านแมวกลางแจ้งระบบปิดแบบ Catio
• เกษตร ย่านใจกลางเมือง ตอบโจทย์การอยู่อาศัย
• สีสันแห่งย่าน “ห้าแยกลาดพร้าว” ไลฟ์สไตล์ชีวิตไม่หยุดนิ่ง “เช้า-ยัน-ดึก”




























