"โครงการ กัสโต้ เพชรเกษม 69 กาญจนาภิเษก (GUSTO Petchakasem 69 Kanchanapisek) UPLIFT YOUR LIFE ยกระดับชีวิตด้วยแนวคิดที่แตกต่าง สู่อีกขั้นของชีวิต ที่สมบูรณ์แบบที่ Gusto เพชรเกษม 69-กาญจนาภิเษก ตอบโจทย์เรื่องระบบรักษาความปลอดภัย ผ่อนคลายในบรรยากาศรีสอร์ทด้วย Club House"
แบบบ้าน : SPINEL ขนาดที่ดิน ~16 ตร.ว. พื้นที่ใช้สอย ~100 ตร.ม. 2ห้องนอน 2ห้องน้ำ 2ที่จอดรถ
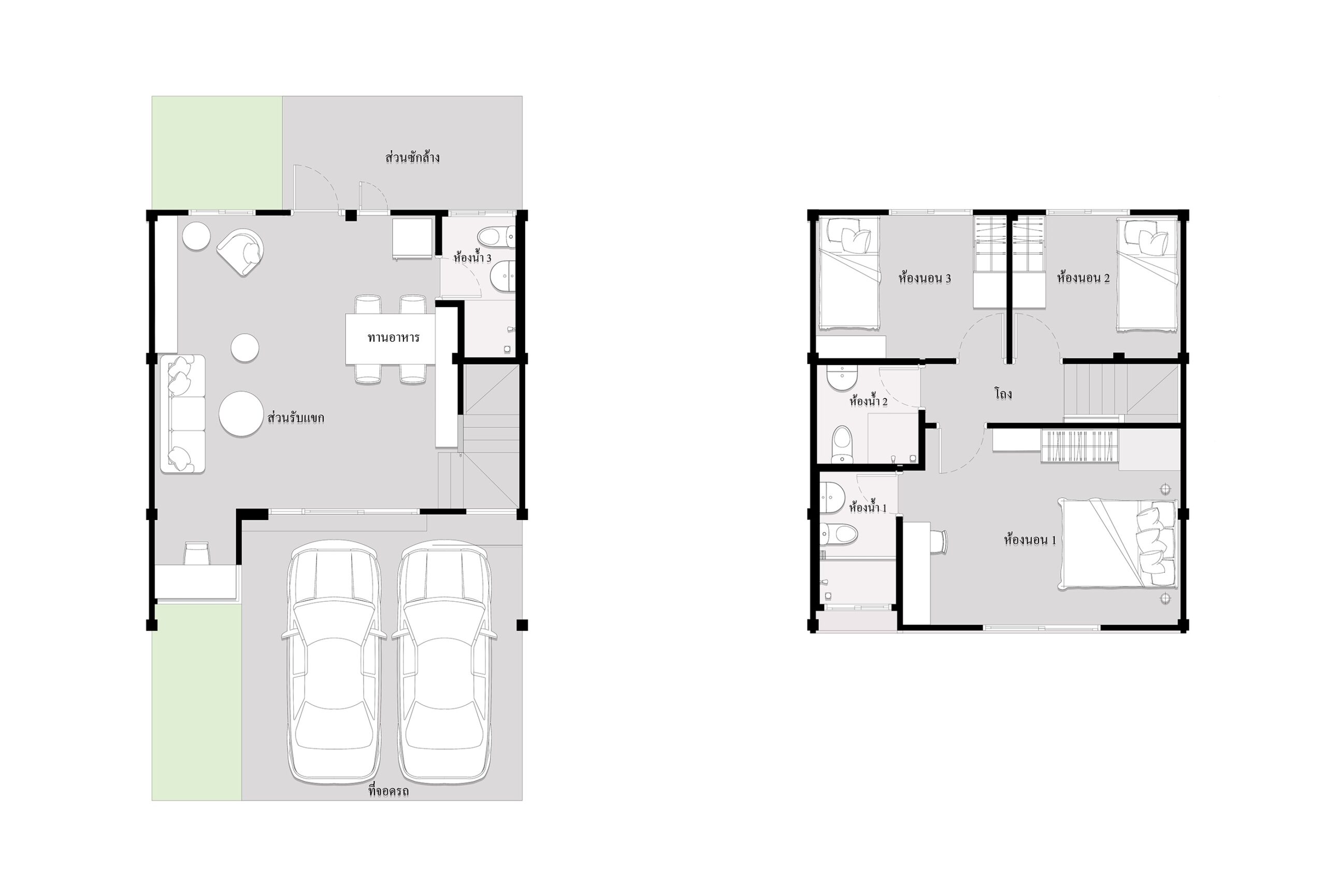
แบบบ้าน : BERYL ขนาดที่ดิน ~17.9 ตร.ว. พื้นที่ใช้สอย ~108 ตร.ม. 3ห้องนอน 2ห้องน้ำ 2ที่จอดรถ
แบบบ้าน : MORGANITE ขนาดที่ดิน ~17.9 ตร.ว. พื้นที่ใช้สอย ~112 ตร.ม. 2ห้องนอน 2ห้องน้ำ 2ที่จอดรถ
แบบบ้าน : QUARTZ ขนาดที่ดิน ~20.7 ตร.ว. พื้นที่ใช้สอย ~105 ตร.ม. 3ห้องนอน 3ห้องน้ำ 2ที่จอดรถถ
แบบบ้าน : IOLITE ขนาดที่ดิน ~23.1 ตร.ว. พื้นที่ใช้สอย ~118 ตร.ม. 3ห้องนอน 3ห้องน้ำ 2ที่จอดรถ 1 มุมทำงาน
แบบบ้าน ทำเลที่ตั้ง ทำเลที่ตั้ง ถนนเลียบคลองภาษีเจริญฝั่งใต้ แขวงหนองแขม เขตหนองแขม กทม. 10160
สิ่งอำนวยความสะดวกรอบโครงการ สถานศึกษารร.สารสาสน์วิเทศ หนองแขมรร.กรพิทักษ์ศึกษารร.สารสาสน์วิเทศ บางบอนรร.ศึกษานารี 2
การเดินทาง MRT หลักสองBTS บางหว้าถนนเลียบคลองภาษีเจริญฝั่งใต้ถนนเลียบคลองภาษีเจริญฝั่งเหนือซอยเพชรเกษม 63ซอยเพชรเกษม 69ซอยเพชรเกษม 81ถนนพุทธสาครถนนเอกชัยถนนพุทธมณฑลสาย 2ถนนพุทธมณฑลสาย 3ถนนพุทธมณฑลสาย 4ถนนพุทธมณฑลสาย 5ถนนกาญจนาภิเษกถนนกัลปพฤกษ์
บทความที่คุณอาจสนใจ
• 15 น้ำพุแมว ยี่ห้อไหนดี ที่โดนใจเจ้านายและตอบโจทย์ไลฟ์สไตล์เหล่าทาส
• 10 ไอเดีย บ้านแมวกลางแจ้งระบบปิดแบบ Catio
• เกษตร ย่านใจกลางเมือง ตอบโจทย์การอยู่อาศัย
• สีสันแห่งย่าน “ห้าแยกลาดพร้าว” ไลฟ์สไตล์ชีวิตไม่หยุดนิ่ง “เช้า-ยัน-ดึก”