กำลังโหลด...
กำลังโหลด...


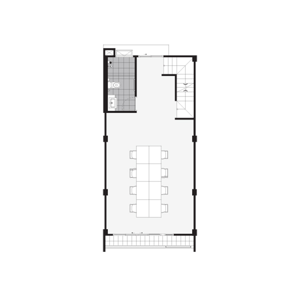
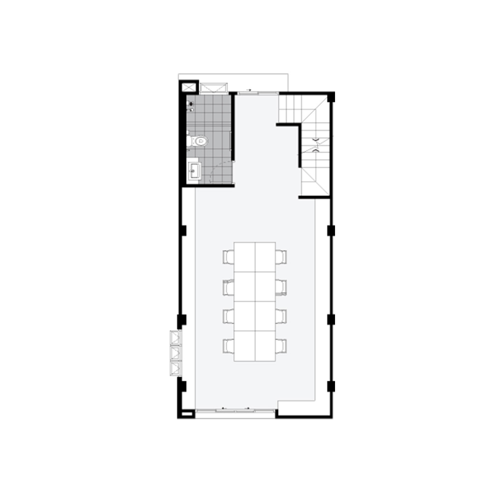
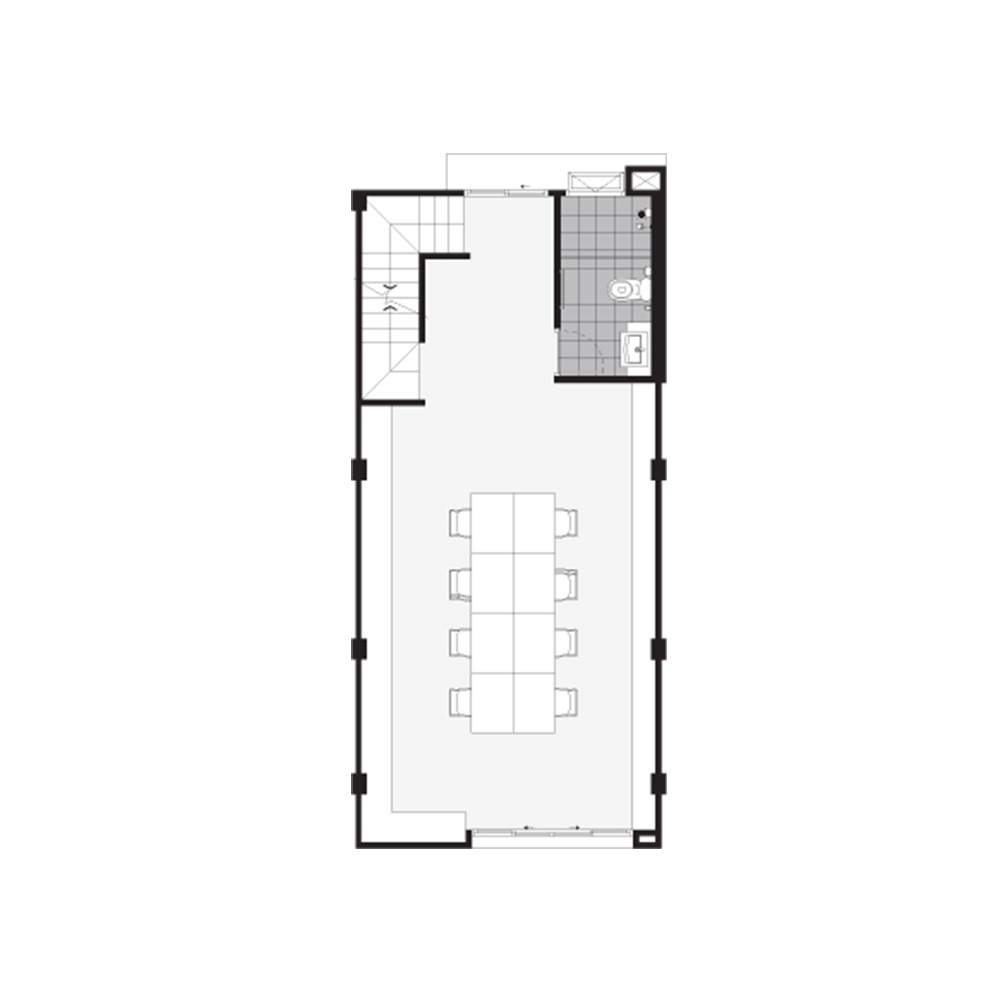
แบบอาคาร : โฮมออฟฟิส พื้นที่ใช้สอย 181 ตร.ม. 4ห้องนอน 5ห้องน้ำ 1ห้องครัว 1ห้องนั่งเล่น 2ที่จอดรถ การเดินทางวิทยาลัยการอาชีพบางปะกงวิทยาลัยเทคนิคจุฬาภรณ์ (ลาดขวาง)โรงเรียนพุทธิรังสีพิบูล

ที่จอดรถ
รปภ. 24 ชม.
การเดินทางทางด่วนดอนเมืองโทลเวย์ทางด่วนอุตราภิมุขรถไฟฟ้าสายสีแดง สถานีรังสิต ห้างสรรพสินค้าเพรียวเพรส รังสิตฟิวเจอร์พาร์ครังสิต แอน สเปลล์Central Mเซียร์ รังสิต