กำลังโหลด...
กำลังโหลด...


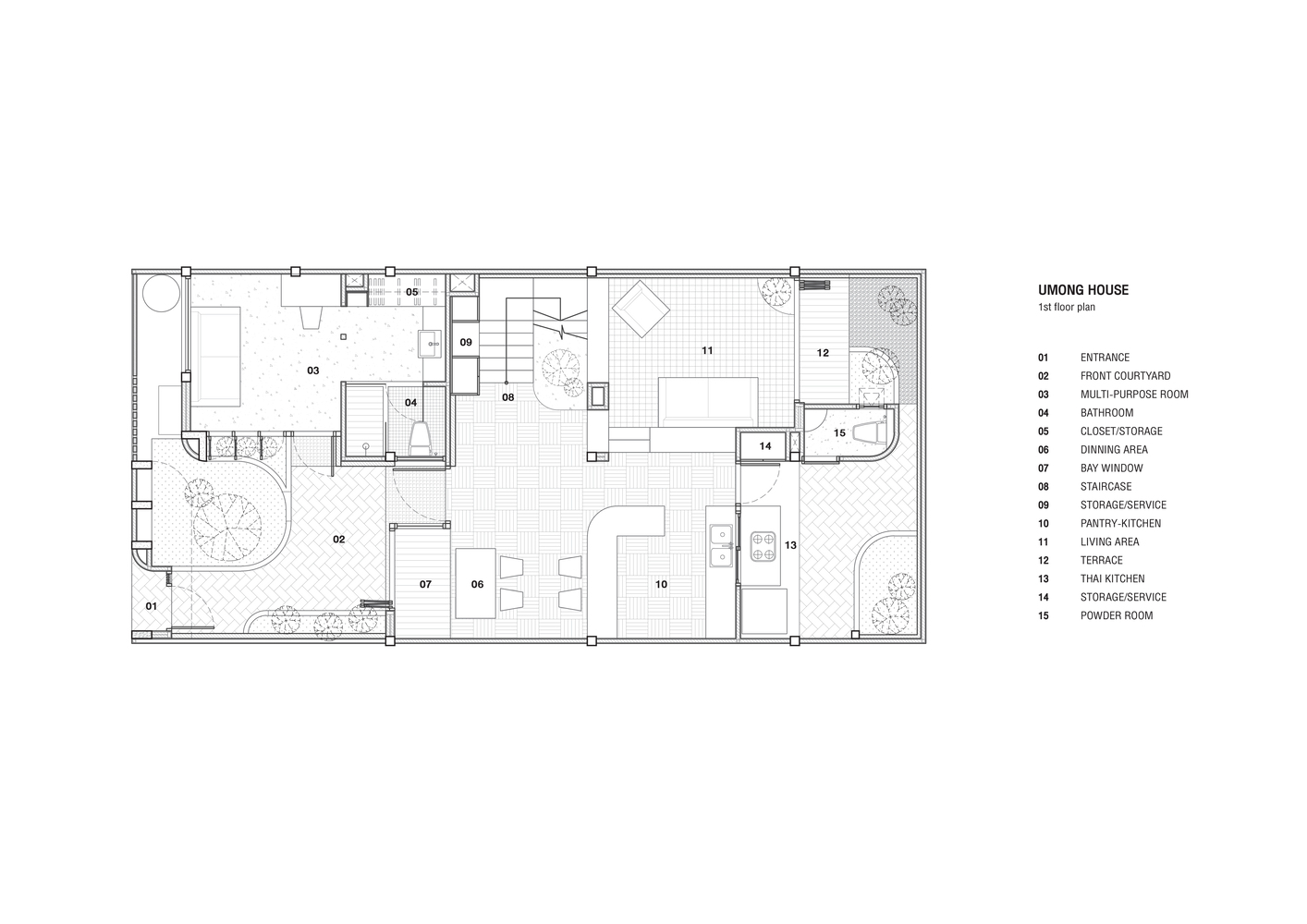
บอกตามตรง ตอนแรกที่เห็นชื่อ “EE House” นี่นึกว่าเป็นชื่อเล่นที่เจ้าของบ้านตั้งให้เฉยๆ ที่ไหนได้ มันคือการออกเสียงแบบไทยๆ ของ “บ้านอี๊” นี่เอง! แต่จะเรียกว่า “บ้านอี๊” หรือ “EE House” ก็ไม่ผิด เพราะนี่คือบ้านที่ออกแบบมาด้วยความเข้าใจในความต้องการของผู้อยู่อาศัยอย่างแท้จริง จุดเริ่มต้นของความอบอุ่นเรื่องมันมีอยู่ว่า… น้าสาวเจ้าของบ้านตัดสินใจที่จะเกษียณจากการทำธุรกิจและย้ายออกจากตึกแถวที่อยู่มานาน เธออยากใช้ชีวิตในบ้านชั้นเดียวที่ไม่ต้องขึ้นลงบันได มีพื้นที่สีเขียวให้พักผ่อน และที่สำคัญอยากอยู่ใกล้ๆ กับพี่สาวโชคดีที่เธอหาที่ดินในหมู่บ้านจัดสรรติดกับบ้านพี่สาวได้ แต่ม

แบบบ้านสไตล์โมเดิร์น เชื่อมทุกชั้นด้วยลานกลางบ้าน วันนี้ Homeday พาชมบ้านสุดเท่ KHO REN house ใกล้แม่น้ำ An Cuu เมือง Hue เวียดนาม ที่ผสานการออกแบบร่วมสมัยเข้ากับสภาพแวดล้อมได้อย่างลงตัว บนพื้นที่ 100 ตารางเมตรโปรเจคนี้ถูกออกแบบสำหรับครอบครัว 2 รุ่น 5 คน โดยเน้นการเชื่อมต่อพื้นที่ระหว่างชั้นผ่านลานกลางบ้าน ตั้งแต่ชั้น 1 จนถึงดาดฟ้า ทำให้ลมจากแม่น้ำ